Katowice, Śląskie

zmień miasto
<< Poprzednie ogłoszenie

Lokal biurowy 86m2 na terenie Porcelana Śląska Park

Katowice ul.Porcelanowa Porcelana Śląska Park

Odpowiedz: (Użyj zakładki Kontakt powyżej)


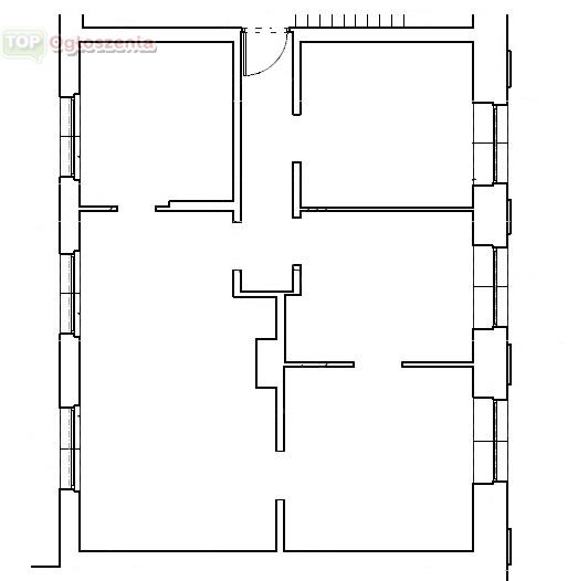
Oferujemy do wynajęcia lokal biurowy 86 m2 za 17 zł za m2. Jest w nim CO, prąd, Internet, telefon. Znajduje się na 2 piętrze. Wejście do biura przez klatkę schodową z piekną starą cegłą. Obok biura 2 toalety.
Biuro składa się z przedpokoju i 5 pomieszczeń. Każde pomieszczenie z oknem. W biurze jest sieć strukturalna.
2 km od skrzyzowania A4 i DK 86.
Możliwość zaparkowania na parkingu tuż obok biura.
Wejście przez portiernie, 24 godzinna ochrona.
Biuro znajduje sie w kompleksie budynków, które stanowia częśc Parku Przemysłowo-Technologicznego Porcelana Śląska Park.

Ogłoszenie dodane: Wtorek, 13 Styczen, 2015  15:40

Identyfikator: 535308

Wyświetleďż˝: 5513

Edytuj Wyr?nij Zg?o?
Ten typ pliku nie jest dozwolony : exe, com, bat, vbs, js, jar, scr, pif
Maksymalny rozmiar pliku : 600KB

Podobne ogłoszenia

  1. Lokal ok. 75 m2 w centrum Słupcy
  2. LOKAL
  3. lokal użytkowy-biuro do wynajęcia
  4. LOKAL DO WYNAJĘCIA W KONINIE
  5. Lokal Gastronomiczny!
search-dziewictwo-sprzedam-93/page-1">dziewictwo sprzedam dziewica Blądynka Randka Młoda mężatka masaż erotyczny z Ukrainy Ukrainka Lovegra BDSM Szczupła blondynka Ukrainka szuka sponsora